Byt 1 + kk s výtahem a zahradou ve zděném domě v centru Českých Budějovic.

Total 10 photos, show all

Do you want to find out any information about your property? Contact us!:

* Name
* E-mail
* Phone
* Your message
 
nahrávám...

Byt 1 + kk s výtahem a zahradou ve zděném domě v centru Českých Budějovic.

11.000 ,- per month
Byt 1 + kk s výtahem a zahradou ve zděném domě v centru Českých Budějovic.
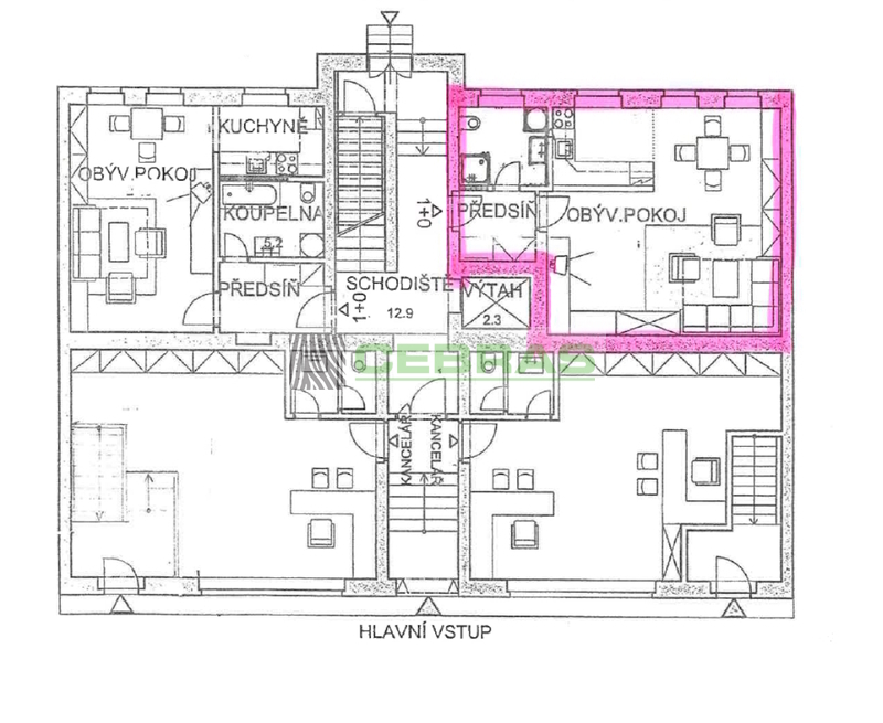
Zděný byt centru Českých Budějovic se nachází v Nové ulici, pouze několik minut od náměstí. Celý objekt je kompletně rekonstruována a moderně adaptován. Má výměru 41 m2, je ve 1. NP patře s výtahem. Dispozice- vstupní chodba, pokoj a kuchyňská část s kuchyňskou linkou s výhledem do zahrad, koupelna se sprchovým koutem a wc. Dům je napojen na bezpečnostní a kamerový systém. Ke společnému užívání je kolárna a pěkně udržovaná zahrada. Byt je vytápěn centrálně, má vlastní měření spotřeby tepla, vody i elektřiny. Společné prostory jsou uklízeny úklidovou službou. probíhá výměna kuchyňského koutu a úprava koupelny - původní fotografie. Majitel preferuje nekuřáky bez domácích mazlíčků s dobrou platební morálkou. Cena nájmu činí 11 000 Kč/ měsíc, energie, voda a ostatní cca 3 000 Kč/ měsíc. Kauce ve výši jednoho nájmu. Provize RK činí jeden nájem + DPH. Volné ihned.

Detailní informace a celou nabídku sledujte na webových stránkách naší realitní kanceláře.

#rkcebras
#cebrasrk
Broker:
real estate broker: Pavel Dědič
Ing. Pavel Dědič
telefon: 602193092
p.dedic@cebras.cz
Type of property:
Flat
No. of real est.:
251001PD
Type of flat:
1+kk
Operation:
Rent
Reservation:
Reserved
Property:
personal
Address:
České Budějovice
Nová 2026/14
Flat number:
1
To move from:
20.10.2025
Floor area:
41 m2
Storey:
Second storey from 4 Number of storeys
State of the object:
Velmi dobrý
Construction:
Bricked
The location of the object:
Village center
Communication:
Asphalt
Information from a broker:
Byt 1 + kk 41 m2 s výtahem a zahradou ve zděném domě v centru Českých Budějovic.
PENB:
D - Méně úsporná
PENB type:
Decree č. 78/2013 Sb.
It is shown that the GPS coordinates:
48° 58' 39.003"N, 14° 28' 46.199"E